Trilocale Frazione Neyran, Brissogne
€ 155.000ALLOGGIO CON 2 CAMERE A BRISSOGNE
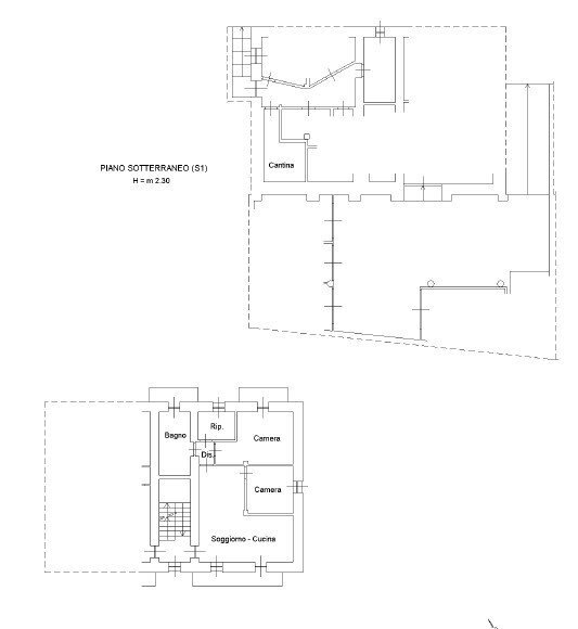
GUARDA IL VIDEO DELL'ALLOGGIO SUL NOSTRO SITO!!! www.patriziadiemozimmobiliare.it A Brissogne, in fr, Neyran, nel centro del paese, vicino alle scuole e a tutti i servizi, VENDESI appartamento in un fabbricato di recente ristrutturazione. L'alloggio si trova al primo piano ed è composto da soggiorno con cucina, un balcone a Sud, camera matrimoniale con balcone, seconda camera, ripostiglio e grande bagno con terzo balcone. La proprietà comprende anche una cantina e un posto auto esterno assegnato. Il box auto si trova al piano interrato, ha un comodo accesso e viene venduto insieme all'alloggio a Euro 20.000,00. Predisposizione per una stufa a pellet e basse spese di gestione. GUARDA IL VIDEO DELL'ALLOGGIO SUL NOSTRO SITO!!! www.patriziadiemozimmobiliare.it Classe Energetica: C EPI: 154,00 kwh/m2 anno
Dati principali
| Riferimento | ID1547033 |
| Data annuncio | 21/01/2023 |
| Contratto | Vendita |
| Tipologia | Appartamento |
| Superficie | 90 m2 |
| Locali | 3 (2 camere da letto, 1 altro), 1 bagno |
| Piano | 1 |
Costi
| Prezzo | 155.000 € |
| Prezzo al m2 | 1.722 €/m2 |
| Spese condominiali | € 90,00/mese |
Efficienza energetica
| Riscaldamento | Centralizzato |
| Tipo Impianto Di Riscaldamento | a radiatori |
| Tipo Alimentazione Riscaldamento | Gpl |
| Classe energetica | C |
| Indice di prestazione energetica (IPE) | 154 kWh/m2 anno |
Planimetrie
Indirizzo e mappa
Frazione Neyran, Brissogne
Calcolo mutuo
Prezzo di vendita:
Anticipo
20,00
Mutuo
80,00
Tasso: -+
Rata: 443 al mese
I risultati sono una stima indicativa basata sui dati inseriti e non costituiscono un’offerta finanziaria.
Inserzionista

Immobiliare Patrizia Diemoz
VIA CONSEIL DES COMMIS 10, Aosta
Mostra Cellulare
Chiama
CONTATTA

