Casa indipendente via Daniele Manin, Alessano
€ 85.000Indipendente con Garage e Giardino
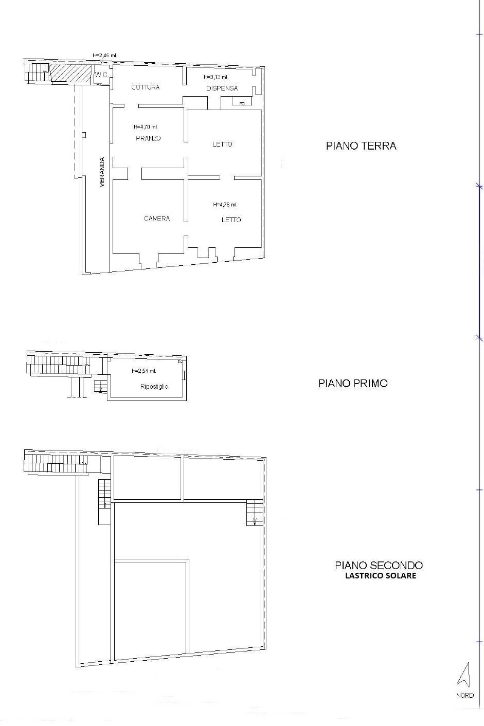
ALESSANO - Nella frazione di Montesardo, proponiamo in vendita antica abitazione indipendente da ristrutturare, disposta su un unico livello con esposizione angolare di mq. 170 circa. Comprende tre ampi vani con volte a stella, di cui due con vista sulla strada principale, due vani con volta piana, una cucina con camino, un bagno con antibagno, un ampio garage di circa 30 mq, un locale deposito e un ulteriore vano al primo piano accessibile tramite scala esterna. Il giardino interno, di circa 70 mq, aggiunge un tocco di verde e tranquillità. Pur necessitando di ristrutturazione, i vani con le caratteristiche volte a stella conservano un discreto stato originale. Ottima soluzione!
Dati principali
| Riferimento | B294 |
| Data annuncio | 01/11/2022 |
| Contratto | Vendita |
| Tipologia | Casa indipendente |
| Superficie | 192 m2 |
| Locali | 5 (2 camere da letto, 3 altro), 1 bagno, cucina abitabile |
| Piano | 1 totali |
| Tipo di costruzione | Popolare |
| Numero di terrazzi | 1 |
| Box auto | Singolo |
| Arredamento | Assente |
Caratteristiche
Costi
| Prezzo | 85.000 € |
| Prezzo al m2 | 443 €/m2 |
Efficienza energetica
| Anno costruzione | 1965 |
| Stato | Da ristrutturare |
| Riscaldamento | Assente |
| Classe energetica | G |
| Indice di prestazione energetica (IPE) | 175 kWh/m2 anno |
Planimetrie
Indirizzo e mappa
via Daniele Manin, Alessano
Calcolo mutuo
Prezzo di vendita:
Anticipo
20,00
Mutuo
80,00
Tasso: -+
Rata: 243 al mese
I risultati sono una stima indicativa basata sui dati inseriti e non costituiscono un’offerta finanziaria.
Inserzionista
Chiama
CONTATTA


