Villa Marsala
€ 260.000VILLETTA INDIPENDENTE - 130 MQ.CA., vendita in provincia di Trapani a Marsala, nella Contrada...
VILLETTA INDIPENDENTE - 130 MQ.CA.,
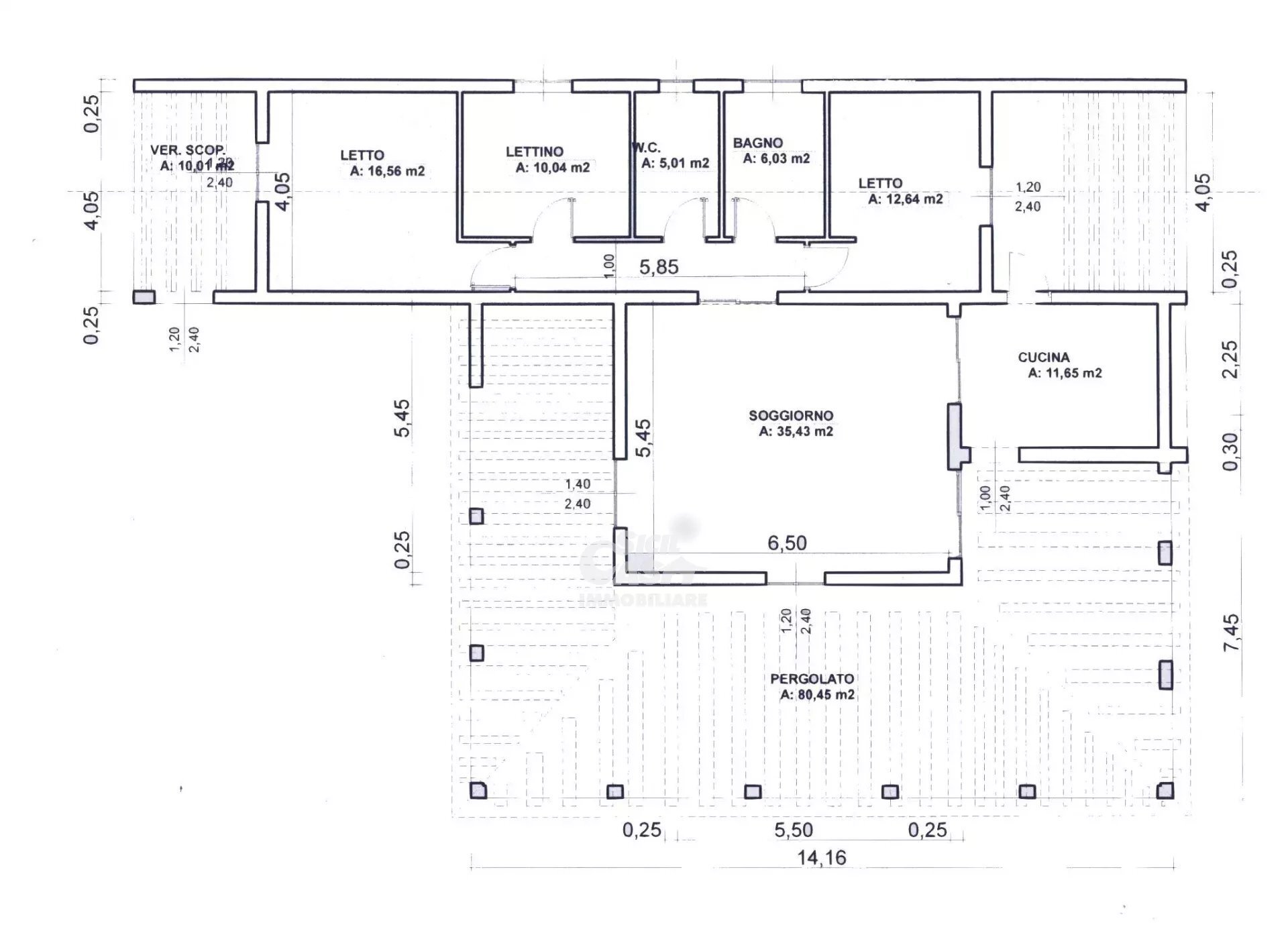
vendita in provincia di Trapani a Marsala, nella Contrada Dammusello, Villetta da realizzarsi , zona residenziale, primissima periferia lato nord di Marsala, in un contesto di ville di recente costruzione, la villetta in oggetto, totalmente indipendente, sarà posta su un piano, con possibilità di ampleamento con il piano cantinato, sarà composta di quattro vani ( salone, tre camere da letto), oltre accessori ( cucina, due bagni, disimpegno e ripostiglio). Per totali mq. circa 180, oltre verande, balconi, ed eventuale piano cantinato (abitabile). Il tutto su un lotto di terreno esteso circa mq. 3000, recintato da muri e cancello in ferro. Le finiture saranno di alta qualità.
Prezzo € 260.000 (RIF. 6144)
vendita in provincia di Trapani a Marsala, nella Contrada Dammusello, Villetta da realizzarsi , zona residenziale, primissima periferia lato nord di Marsala, in un contesto di ville di recente costruzione, la villetta in oggetto, totalmente indipendente, sarà posta su un piano, con possibilità di ampleamento con il piano cantinato, sarà composta di quattro vani ( salone, tre camere da letto), oltre accessori ( cucina, due bagni, disimpegno e ripostiglio). Per totali mq. circa 180, oltre verande, balconi, ed eventuale piano cantinato (abitabile). Il tutto su un lotto di terreno esteso circa mq. 3000, recintato da muri e cancello in ferro. Le finiture saranno di alta qualità.
Prezzo € 260.000 (RIF. 6144)
Dati principali
| Riferimento | 6144 |
| Data annuncio | 25/10/2022 |
| Contratto | Vendita |
| Tipologia | Villa |
| Superficie | 180 m2 |
| Locali | 4 (3 camere da letto, 1 altro), 2 bagni, cucina abitabile |
| Piano | 1 totali |
| Tipo di costruzione | Media |
| Box auto | Singolo |
Caratteristiche
Costi
| Prezzo | 260.000 € |
| Prezzo al m2 | 1.444 €/m2 |
Efficienza energetica
| Riscaldamento | Assente |
| Classe energetica | G |
Indirizzo e mappa
Marsala
Annuncio senza mappa,
prova a chiedere la posizione all'inserzionista
prova a chiedere la posizione all'inserzionista
Calcolo mutuo
Prezzo di vendita:
Anticipo
20,00
Mutuo
80,00
Tasso: -+
Rata: 744 al mese
I risultati sono una stima indicativa basata sui dati inseriti e non costituiscono un’offerta finanziaria.
Inserzionista

SicilCasa Immobiliare
corso antonio gramsci 61, Marsala
Mostra Cellulare
Chiama
CONTATTA

