Capannone via Manfredonia, Foggia
€ 360.000CAPANNONE FOGGIA VIA MANFREDONIA
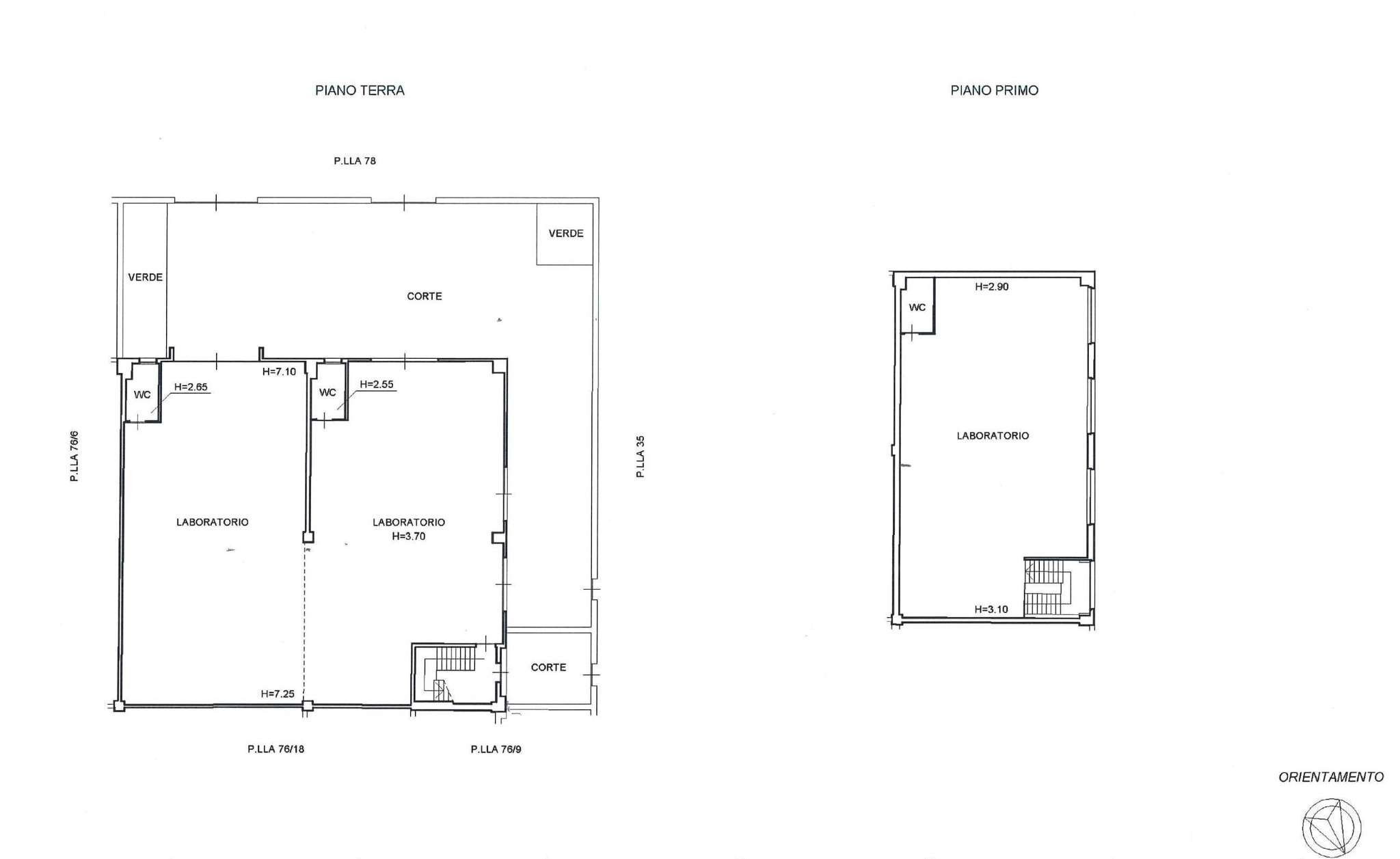
CAPANNONE INDUSTRIALE DI NUOVA COSTRUZIONE VENDITA FOGGIA VIA MANFREDONIA KM 2 Nella zona industriale denominata “Villaggio Artigiani” proponiamo in vendita capannone in ottimo stato conservativo di nuova costruzione, di superficie complessiva mq 550 circa con tre servizi, composto da mq 365 circa al piano terra, mq 180 al piano primo e mq oltre a mq 270 circa di corte esclusiva recintata antistante. Ampi spazi di manovra e parcheggio. Per ulteriori informazioni e appuntamenti: IMMOBILI & GESTIONI Srl - Telefono 010.56.48.06 - www.immobiliegestioni.it
Dati principali
| Riferimento | FOGGIA |
| Data annuncio | 17/09/2022 |
| Contratto | Vendita |
| Tipologia | Capannone |
| Superficie | 550 m2 |
| Piano | 2 totali |
| Tipo di costruzione | Civile |
| Box auto | Assente |
| Uso immobile | Industriale |
Caratteristiche
Costi
| Prezzo | 360.000 € |
| Prezzo al m2 | 655 €/m2 |
Efficienza energetica
| Riscaldamento | Assente |
| Classe energetica | G |
| Indice di prestazione energetica (IPE) | 175 kWh/m2 anno |
Planimetrie
Indirizzo e mappa
via Manfredonia, Foggia
Calcolo mutuo
Prezzo di vendita:
Anticipo
20,00
Mutuo
80,00
Tasso: -+
Rata: 1.030 al mese
I risultati sono una stima indicativa basata sui dati inseriti e non costituiscono un’offerta finanziaria.
Inserzionista

IMMOBILI & GESTIONI S.R.L.
VIA INNOCENZO IV 5/3, Genova
Mostra Telefono
Chiama
CONTATTA

