Appartamento Cervia
€ 380.000
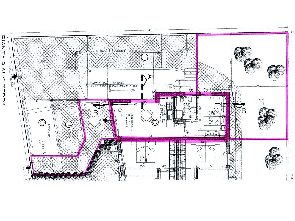
Vendiamo a Milano Marittima, a pochi passi dal mare e dal porto turistico, appartamento posto al piano terra in piccola villetta di recentissima costruzione. L’immobile è composto da un luminoso soggiorno caratterizzato da ampie vetrate, cucina in parete, una camera da letto matrimoniale ed un bagno. Giardino privato e piccolo patio. Un posto auto al piano terra e uno coperto al piano interrato. L’appartamento è dotato di ottime finiture, di impianto di climatizzazione e ogni confort. Viene proposto in vendita completamente arredato. Rif. 842
Dati principali
| Riferimento | BRB842 |
| Data annuncio | 02/05/2022 |
| Contratto | Vendita |
| Tipologia | Appartamento |
| Superficie | 40 m2 |
| Locali | 1 bagno |
Costi
| Prezzo | 380.000 € |
| Prezzo al m2 | 9.500 €/m2 |
Efficienza energetica
| Classe energetica | D |
Planimetrie
Indirizzo e mappa
Cervia
Calcolo mutuo
Prezzo di vendita:
Anticipo
20,00
Mutuo
80,00
Tasso: -+
Rata: 1.087 al mese
I risultati sono una stima indicativa basata sui dati inseriti e non costituiscono un’offerta finanziaria.
Inserzionista
Barbieri Immobiliare
V.le Volturno, 27, Cervia
Mostra Telefono
Chiama
CONTATTA

