Casa indipendente piazza Vittorio Veneto, Invorio
€ 300.000Palazzotto in centro con corte privata
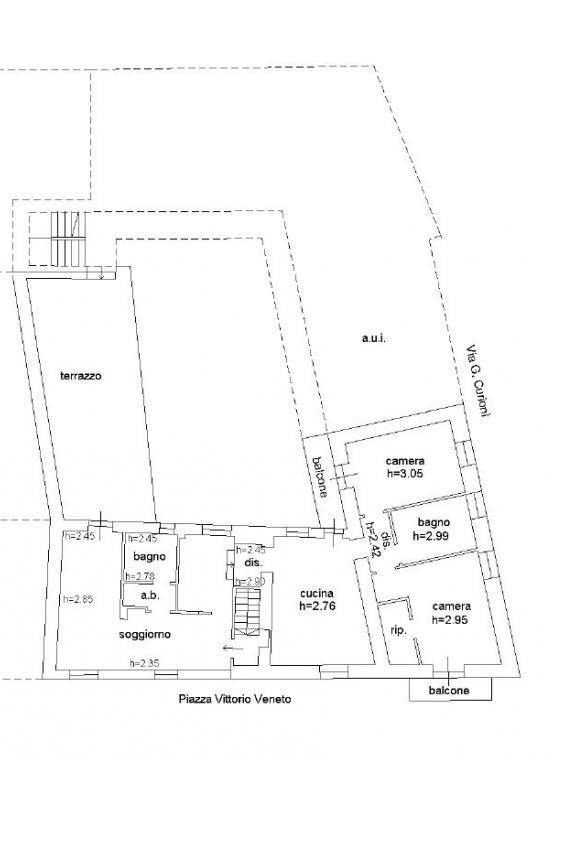
Nel centro di Invorio, una bella proprietà in vendita, ideale sia per abitazione principale (anche plurifamiliare), sia come investimento immobiliare, data l’elevata possibilità di trarre un ottimo reddito da locazione. La corte è totalmente indipendente, di mq.113, con doppio accesso pedonale ed accesso carraio; un terzo accesso pedonale, rende indipendente uno degli appartamenti fronte strada. Gli immobili hanno quasi tutti un doppio affaccio: sulla corte interna e sull’esterno, verso il Municipio di Invorio o verso Piazza Martiri, oppure verso il vicolo Porta Furia. Piano Terreno: – un grande locale commerciali ad uso bar (circa mq.40) – un ampio locale di sgombero (mq.47), con affaccio sulla corte, utilizzato come posti auto coperti – appartamento ristrutturato ed in ottimo stato di conservazione composto da: salone, cucina, disimpegno, due camere, bagno e servizio (circa mq.120) Piano Terreno/Primo: – appartamento di mq.180 circa, ben tenuto, con ingresso indipendente dalla Via Matteotti composto da: ingresso, due locali (ad uso ripostiglio/deposito), wc e vano scala (circa mq.40); al piano superiore, grande salone con disimpegno ed accesso ad una cucina abitabile e ad un terrazzo privato di mq.42, due camere da letto, due bagni e due balconi di mq.8 (Il piano primo complessivamente misura circa mq.140). Piano Primo: – appartamento di mq.52: un piccolo salotto con cucina a vista, camera da letto e bagno; balcone mq.9 – appartamento di mq.73: cucina abitabile, sala, bagno e camera da letto; balcone mq.3 Piano Secondo: – appartamento di mq.41: monolocale con cucina separata e bagno; balcone mq.11 – appartamento di mq.48: saletta con cucina a vista, camera singola e bagno Piano Terzo (soffitta mq.86) Piano Interrato: – grande cantinato open-space (mq.53) La proprietà in vendita è molto bella, in centro paese, totalmente recintata da murature antiche e presenta le caratteristiche architettoniche tipiche delle case piemontesi della prima metà del Novecento. Le facciate sono in parte state rifatte, le coperture sono nel complesso in buono stato, in alcune zone, il sottotetto è ispezionabile e si possono notare l’orditura e le tegole che sono in buono stato di manutenzione. All’interno le varie unità immobiliari sono risalenti ad epoche diverse. Intorno al 1996, la proprietà ha ristrutturato l’appartamento a piano terreno/primo di circa mq.180, che conserva, quindi, finiture caratteristiche degli anni novanta. Decisamente di ottima finitura, sono i lavori di ristrutturazione eseguiti nell’appartamento a piano terreno, tra gli anni 2012 e 2013. Qui si possono notare delle pavimentazioni in ceramica monocottura con battiscopa coordinati, serramenti esterni con doppio vetro e porte interne in stile moderno; perfetti i bagni e la cucina. Il riscaldamento è garantito per mezzo di due stufe a pellet, una in soggiorno ed una nel disimpegno della zona notte. Tutta l’impiantistica e le finiture in generale sono di alta qualità.
Dati principali
| Riferimento | 629 |
| Data annuncio | 07/03/2022 |
| Contratto | Vendita |
| Tipologia | Casa indipendente |
| Superficie | 617 m2 |
| Locali | più di 5 (7 camere da letto, 6 altro), 4 bagni, cucina abitabile |
| Piano | 1 di 3 totali |
| Tipo di costruzione | Media |
| Numero di terrazzi | 1 |
| Numero di balconi | 1 |
| Box auto | Doppio |
| Numero posti auto | 4 |
| Arredamento | Assente |
Caratteristiche
Costi
| Prezzo | 300.000 € |
| Prezzo al m2 | 486 €/m2 |
Efficienza energetica
| Anno costruzione | 2012 |
| Stato | Ottimo |
| Riscaldamento | Autonomo |
| Classe energetica | G |
| Indice di prestazione energetica (IPE) | 421 kWh/m2 anno |
Planimetrie
Indirizzo e mappa
piazza Vittorio Veneto, Invorio
Calcolo mutuo
Prezzo di vendita:
Anticipo
20,00
Mutuo
80,00
Tasso: -+
Rata: 858 al mese
I risultati sono una stima indicativa basata sui dati inseriti e non costituiscono un’offerta finanziaria.
Inserzionista

Immobiliare Ca' Nova
Via Gramsci 18, Borgomanero
Mostra Telefono
Chiama
CONTATTA

