

Villa Reggio nell'Emilia
€ 670.000
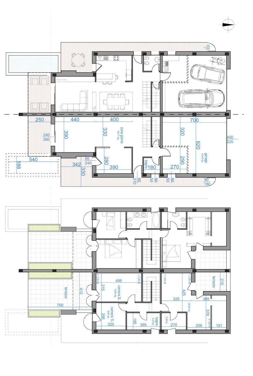
Rif.7.233-Acque Chiare-Intervento residenziale di 8 ville abbinate in C.E A4 con piscina,posizione verde e tranquilla a due passi dal centro e dai servizi, composte da: ingresso,soggiorno, cucina abitabile, bagno e ampio garage doppiopiano superiore 3 camere matrimoniali e 2 bagni ottime finiture
Dati principali
| Riferimento | PRF7.233 |
| Data annuncio | 08/02/2022 |
| Contratto | Vendita |
| Tipologia | Villa |
| Superficie | 230 m2 |
| Locali | 3 bagni |
Costi
| Prezzo | 670.000 € |
| Prezzo al m2 | 2.913 €/m2 |
Efficienza energetica
| Classe energetica | A4 |
Indirizzo e mappa
Reggio nell'Emilia
Calcolo mutuo
Prezzo di vendita:
Anticipo
20,00
Mutuo
80,00
Tasso: -+
Rata: 1.916 al mese
I risultati sono una stima indicativa basata sui dati inseriti e non costituiscono un’offerta finanziaria.
Inserzionista
Professional Immobiliare
VIALE UMBERTO I, 7, Reggio nell'Emilia
Mostra Telefono
Chiama
CONTATTA