Casa semi indipendente Via G. Scappino, 8, Crescentino
€ 50.000A 25 MINUTI DA TORINO NORD-EST
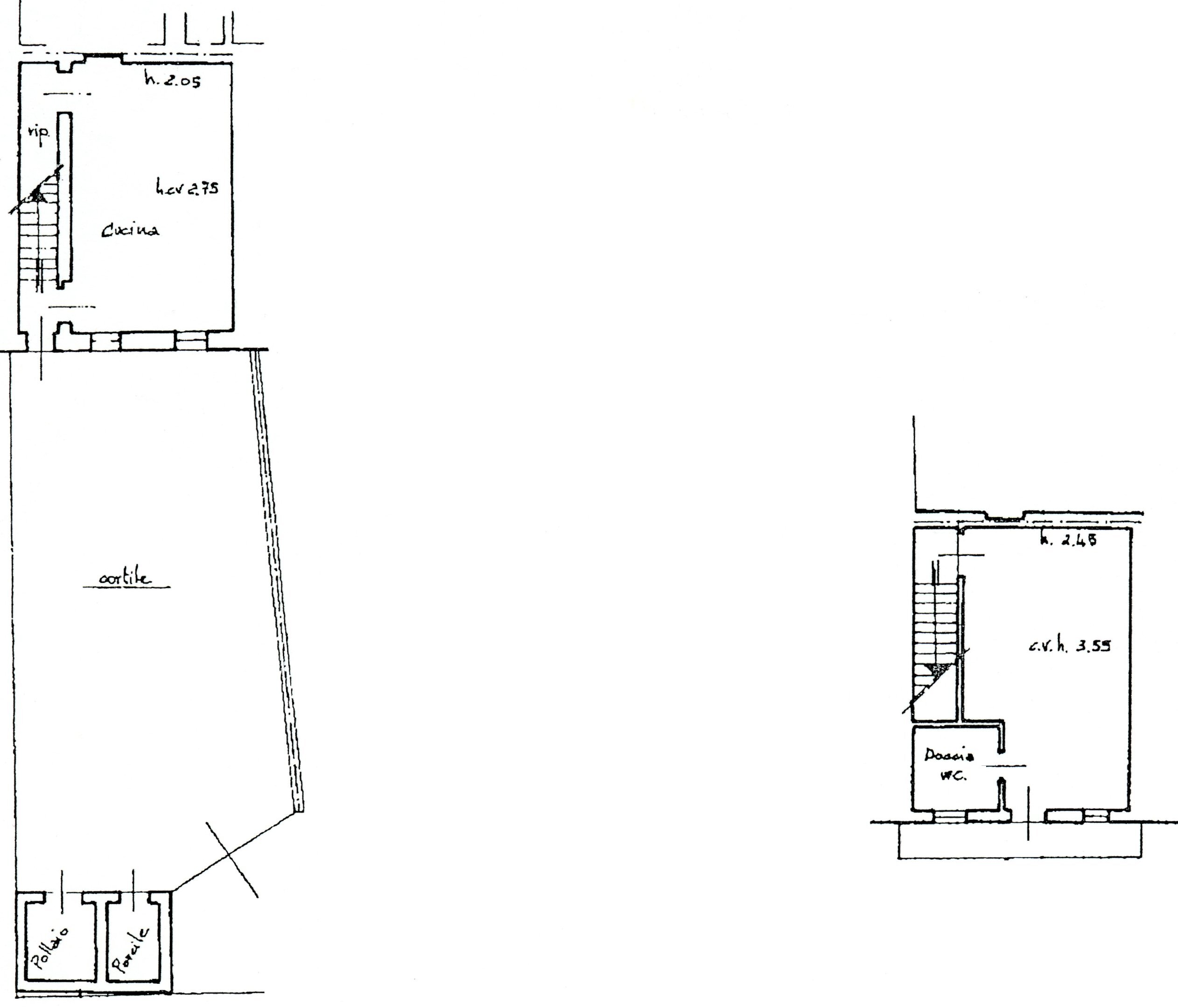
A pochi km dal centro del paese in tranquilla borgata di pianura proponiamo casa indipendente ristrutturata con cortile privato (mq. 100 tot.), con precisione composta al piano terra da: ingresso su vano scala, ampio soggiorno con cucina a vista, ripost. nel sottoscala; al piano primo abbiamo: luminosa camera da letto con tetto a vista, bagno con doccia e balcone con affaccio su cortile (mq. 70 compl.). Completa la proprietà il basso fabbricato nel cortile uso ripostiglio. Il riscaldamento è autonomo con stufa a pellet con canalizzazione nelle varie stanze. L'abitazione attualmente è occupata da inquilini con regolare contratto da affitto in scadenza a settembre 2022.
€. 50.000, volendo con Mutuo totale.
€. 50.000, volendo con Mutuo totale.
Dati principali
| Riferimento | 066 |
| Data annuncio | 16/09/2021 |
| Contratto | Vendita |
| Tipologia | Casa semi indipendente |
| Superficie | 70 m2 |
| Locali | 2 (1 camera da letto, 1 altro), 1 bagno, cucina abitabile |
| Piano | 2 totali |
| Tipo di costruzione | Civile |
| Occupato | Occupato da Inquilino |
| Numero di balconi | 1 |
| Numero posti auto | 2 |
| Arredamento | Parziale |
Caratteristiche
Costi
| Prezzo | 50.000 € |
| Prezzo al m2 | 714 €/m2 |
Efficienza energetica
| Stato | Ottimo |
| Aria Condizionata | Assente |
| Riscaldamento | Autonomo |
| Tipo Impianto Di Riscaldamento | a stufa |
| Tipo Alimentazione Riscaldamento | Pellet |
| Infissi esterni | Doppio vetro / Legno |
| Classe energetica | Non classificabile |
Planimetrie
Indirizzo e mappa
Via G. Scappino, 8, Crescentino
Calcolo mutuo
Prezzo di vendita:
Anticipo
20,00
Mutuo
80,00
Tasso: -+
Rata: 143 al mese
I risultati sono una stima indicativa basata sui dati inseriti e non costituiscono un’offerta finanziaria.
Inserzionista
Chiama
CONTATTA


