Appartamento Cervia
€ 480.000
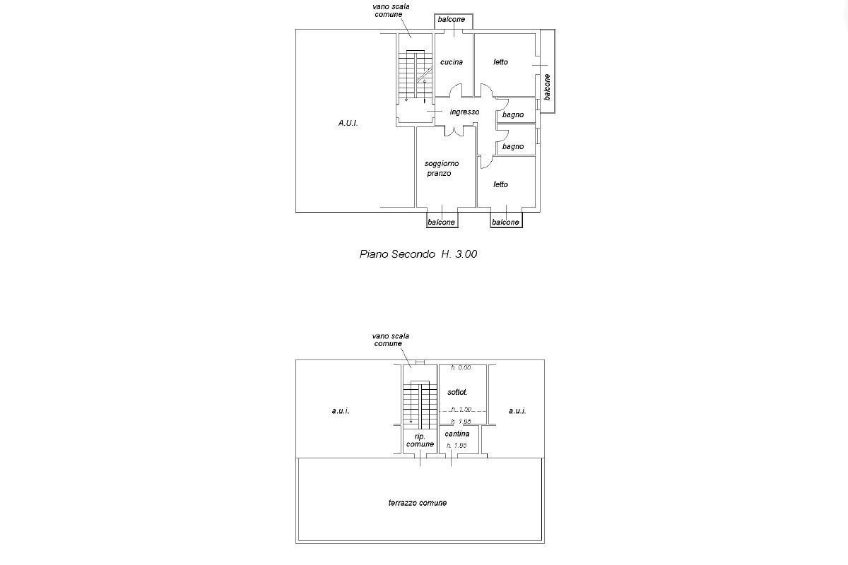
Vendiamo a Milano Marittima appartamento quadrilocale in piccola palazzina a due passi dalla zona pedonale e dal centro. L’immobile è posto al secondo piano, senza ascensore, e si compone di un luminoso soggiorno con balcone, cucina abitabile con balcone, disimpegno, bagno, un’ampia camera matrimoniale con balcone ed una seconda camera matrimoniale dotata di bagno privato finestrato ed ulteriore balcone. Al piano superiore, in corpo staccato e raggiungibile tramite vano scale, sono presenti una cantina di proprietà ed ampio terrazzo comune. Completano l’offerta un garage e due posti auto condominiali al piano terra. L’appartamento è stato recentemente rivisitato, dotato di impianti autonomi a norma e si presenta in ottime condizioni generali, pronto per essere sfruttato. Il condominio è stato di recente ristrutturato con il rifacimento della facciata. Soluzione interessante vista la posizione, centralissima a Milano Marittima e vicino al mare, e la generosa metratura. Rif. 729.
Dati principali
| Riferimento | BRB 729 |
| Data annuncio | 06/09/2021 |
| Contratto | Vendita |
| Tipologia | Appartamento |
| Superficie | 99 m2 |
| Locali | 2 bagni |
| Piano | 2 |
Costi
| Prezzo | 480.000 € |
| Prezzo al m2 | 4.848 €/m2 |
Efficienza energetica
| Classe energetica | G |
Planimetrie
Indirizzo e mappa
Cervia
Calcolo mutuo
Prezzo di vendita:
Anticipo
20,00
Mutuo
80,00
Tasso: -+
Rata: 1.373 al mese
I risultati sono una stima indicativa basata sui dati inseriti e non costituiscono un’offerta finanziaria.
Inserzionista
Barbieri Immobiliare
V.le Volturno, 27, Cervia
Mostra Telefono
Chiama
CONTATTA

