Casa indipendente via Giuseppe Verdi, Gagliano del Capo
€ 200.000Abitazione indipendente con vista mare
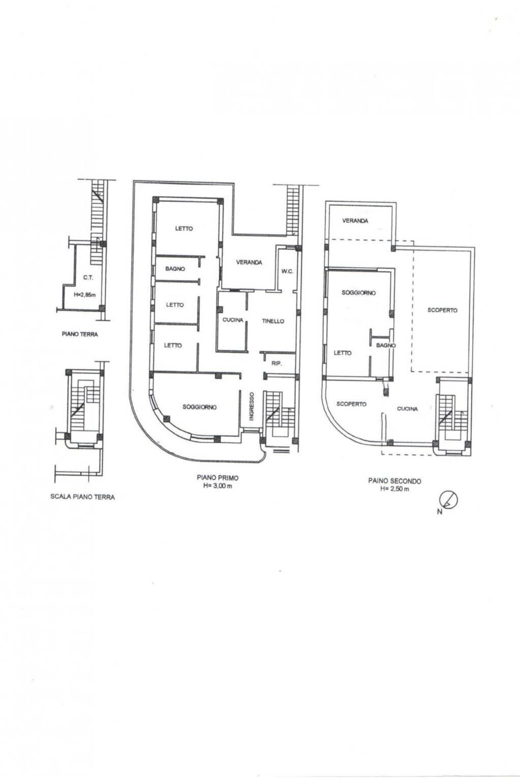
GAGLIANO DEL CAPO – In una splendida posizione panoramica con vista mare, l'agenzia immobiliare "Abitare in Salento" propone in vendita una casa indipendente angolare disposta su più livelli, con una superficie complessiva di 400 mq. Il Piano Terra, di circa 105 mq, comprende un ampio open space con servizi, ideale come locale commerciale, e un garage di circa 45 mq. Il Primo Piano, di circa 170 mq, è composto da un luminoso tinello con vista sul mare, un’ampia sala angolare, tre camere da letto e due bagni. Al piano superiore, accessibile tramite scala interna, si trova una mansarda di circa 80 mq, e comprende un tinello con angolo cottura, una camera da letto, un bagno e una sala caratterizzata da un elegante camino in legno di ulivo. Grandi vetrate con vista sul mare illuminano l'ambiente, affacciandosi su due ampie terrazze attrezzate con barbecue, porticato in legno e tende scorrevoli elettriche, perfette per godere della vista panoramica. La proprietà è dotata di ogni comfort: impianto di allarme, climatizzazione, fognatura, acqua potabile e predisposizione per il gas metano. Un giardino sul retro, con scala di collegamento tra il piano terra e il primo piano, aggiunge ulteriore valore. È possibile separare completamente il piano terra dal resto della casa, rendendola perfetta per chi desidera una struttura ricettiva, come un B&B. Una soluzione ideale, altamente consigliata e che merita sicuramente una visita. Non lasciarti sfuggire questa opportunità unica!
Dati principali
| Riferimento | B157 |
| Data annuncio | 18/09/2019 |
| Contratto | Vendita |
| Tipologia | Casa indipendente |
| Superficie | 500 m2 |
| Locali | più di 5 (3 camere da letto, 6 altro), 4 bagni, cucina abitabile |
| Piano | 3 totali |
| Tipo di costruzione | Media |
| Numero di terrazzi | 1 |
| Numero di balconi | 1 |
| Box auto | Doppio |
| Arredamento | Parziale |
Caratteristiche
Costi
| Prezzo | 200.000 € |
| Prezzo al m2 | 400 €/m2 |
Efficienza energetica
| Anno costruzione | 1980 |
| Stato | Buono |
| Riscaldamento | Autonomo |
| Classe energetica | F |
| Indice di prestazione energetica (IPE) | 175 kWh/m2 anno |
Planimetrie
Indirizzo e mappa
via Giuseppe Verdi, Gagliano del Capo
Annuncio senza mappa,
prova a chiedere la posizione all'inserzionista
prova a chiedere la posizione all'inserzionista
Calcolo mutuo
Prezzo di vendita:
Anticipo
20,00
Mutuo
80,00
Tasso: -+
Rata: 572 al mese
I risultati sono una stima indicativa basata sui dati inseriti e non costituiscono un’offerta finanziaria.
Inserzionista
Chiama
CONTATTA


