Four-room apartment Via Camillo Cavour, Alpignano
€ 185.000Quadrilocale in vendita
NUOVA RISTRUTTURAZIONE
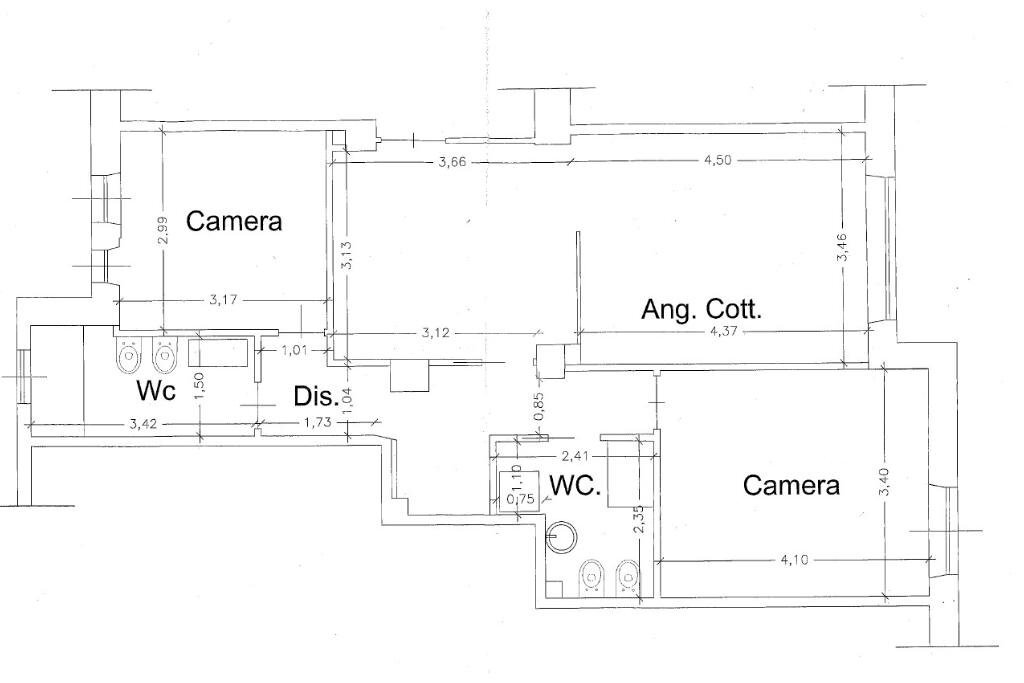
Nel cuore di Alpignano, in posizione centralissima, comodissima a tutti i servizi e ben collegata a Pianezza, proponiamo in vendita splendido quadrilocale di circa 80 mq.
L’alloggio, situato al primo piano servito da ascensore, è inserito in un contesto condominiale completamente ristrutturato, attualmente in fase di ultimazione, con fine lavori prevista per marzo 2026, contesto ideale per chi cerca comfort moderno e qualità costruttiva.
Dal portoncino di ingresso si accede direttamente sul soggiorno living, valorizzato da listelli in legno di design che definiscono con eleganza la separazione tra zona cucina e zona salotto, creando ambienti armoniosi e ben organizzati.
La zona notte è composta da due camere, di cui una matrimoniale e bagno adiacente completo, pensato per garantire comfort e privacy.
Il secondo bagno è dotato di doccia walk-in a filo pavimento, dal gusto moderno e funzionale.
Completano la proprietà due ampi balconi, di cui uno verandato, attrezzato con attacco per la lavatrice, ideale per ricavare una zona lavanderia comoda e funzionale senza rinunciare allo spazio esterno, e la cantina.
L’immobile è in fase di ristrutturazione, con un progetto accurato e di design, studiato nei minimi dettagli, e sarà pronto entro aprile. Le foto sono rappresentative e danno un'idea delle rifiniture.
Una proposta ideale per chi desidera vivere il centro paese in un contesto totalmente rinnovato, con finiture contemporanee.
Nel cuore di Alpignano, in posizione centralissima, comodissima a tutti i servizi e ben collegata a Pianezza, proponiamo in vendita splendido quadrilocale di circa 80 mq.
L’alloggio, situato al primo piano servito da ascensore, è inserito in un contesto condominiale completamente ristrutturato, attualmente in fase di ultimazione, con fine lavori prevista per marzo 2026, contesto ideale per chi cerca comfort moderno e qualità costruttiva.
Dal portoncino di ingresso si accede direttamente sul soggiorno living, valorizzato da listelli in legno di design che definiscono con eleganza la separazione tra zona cucina e zona salotto, creando ambienti armoniosi e ben organizzati.
La zona notte è composta da due camere, di cui una matrimoniale e bagno adiacente completo, pensato per garantire comfort e privacy.
Il secondo bagno è dotato di doccia walk-in a filo pavimento, dal gusto moderno e funzionale.
Completano la proprietà due ampi balconi, di cui uno verandato, attrezzato con attacco per la lavatrice, ideale per ricavare una zona lavanderia comoda e funzionale senza rinunciare allo spazio esterno, e la cantina.
L’immobile è in fase di ristrutturazione, con un progetto accurato e di design, studiato nei minimi dettagli, e sarà pronto entro aprile. Le foto sono rappresentative e danno un'idea delle rifiniture.
Una proposta ideale per chi desidera vivere il centro paese in un contesto totalmente rinnovato, con finiture contemporanee.
Main data
| Reference | 61167096 |
| Ad date | 28/01/2026 |
| Contract | Sale |
| Typology | Apartment |
| Surface | 82 m2 |
| Locals | 4 (4 other), 2 bathrooms |
| Plan | 1 from 6 totals |
Costs
| Price | 185.000 € |
| Price per m2 | 2.256 €/m2 |
| Condominium fees | €100,00/month |
Energy efficiency
| Year built | 1970 |
| Heating | Centralized |
| Heating Power Type | Methane |
| Energy rating | B |
| Energy performance index (EP GL, REN ) | 20 kWh/m3 year |
| Energy performance index (EP GL, NREN ) | 32 kWh/m3 year |
Floor plans
Video
Address and map
Via Camillo Cavour, Alpignano
Mortgage calculation
Selling price:
Advance
20,00
Mortgage
80,00
Rate: -+
Payment: 529 per month
The results are an indicative estimate based on the data entered and do not constitute a financial offer.
Advertiser
Call
CONTACT

