Castle Via XXV Aprile, Castelletto Cervo
€ 1.300.000
CASTELLO STORICO DI LUSSO SULLE ALPI BIELLESI
Questa straordinaria residenza storica, un castelletto del 1300 situato nel cuore del territorio Biellese, nel comune di Castelletto Cervo, offre un fascino senza tempo, mantenendo intatte le sue caratteristiche architettoniche originali, che lo rendono davvero un unicum nel suo genere.
Edificato su un promontorio che domina il panorama del Monte Rosa e delle Alpi Biellesi, si caratterizza immediatamente ad una prima vista per la sua facciata suggestiva, composta da un mix di ciottoli di fiume e mattoni, e per la particolare pianta ad elle.
Si accede alla dimora attraversando una suggestiva corte interna, impreziosita da un giardino che circonda la struttura al cui centro sorge un antico pozzo romano. Lesterno e gli interni sono finemente ristrutturati nei minimi dettagli, attraverso unimportante opera di restauro che ne valorizza ogni singolo spazio, realizzando così un connubio di stili antichi ed eleganti con unattenzione ai comfort moderni.
Il Castelletto si sviluppa su quattro livelli: il piano seminterrato, due bagni, la cantina con locale di servizio, il piano terra dove si trovano quattro sale, fra cui il salone principale, con i suoi intonaci, pavimenti e decorazioni originali, abbellito da un camino originale del 1300, che si impone nellambiente, creando unatmosfera suggestiva e accogliente, troviamo anche la cucina, che si distingue per il mantenimento di spazi e tratti antichi, ma totalmente rinnovata per garantire le esigenze della quotidianità dei nostri giorni, perfetta sia per un utilizzo privato sia per la preparazione di eventi.
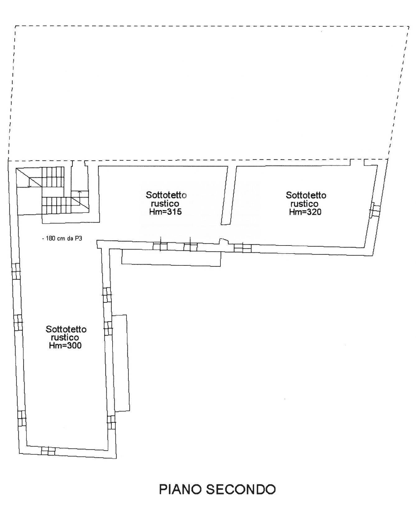
La dimora si sviluppa su un totale di 1.100 mq e salendo ai piani superiori si trovano camere da letto, 2 delle quali dotate di bagno privato. Al primo piano, oltre alle camere, si trovano due saloni, adibiti e perfetti per eventi mondani e ricevimenti. Il secondo piano ospita un ampio sottotetto di 350 mq con travi a vista originali, che può offrire ulteriori possibilità di sviluppo e restyling degli spazi, grazie anche alle numerose finestre con affaccio esterno, trasformandolo anche in un nuovo appartamento.
Questa dimora è impreziosita dai soffitti con travi in legno a vista e pareti che lasciano intravedere le antiche murature, che donano appunto tratti di personalità e caratterizzazione unici.
Unilluminazione calda e discreta, un giardino curato, impreziosito da un antico pozzo romano, il profilo del castello stesso che domina il fiume che gli scorre vicino, rendono questo immobile di lusso un luogo unico e magico ideale da vivere, ma anche perfetto per eventi esclusivi o la possibilità di adibirlo a struttura ricettiva.
Questa straordinaria residenza storica, un castelletto del 1300 situato nel cuore del territorio Biellese, nel comune di Castelletto Cervo, offre un fascino senza tempo, mantenendo intatte le sue caratteristiche architettoniche originali, che lo rendono davvero un unicum nel suo genere.
Edificato su un promontorio che domina il panorama del Monte Rosa e delle Alpi Biellesi, si caratterizza immediatamente ad una prima vista per la sua facciata suggestiva, composta da un mix di ciottoli di fiume e mattoni, e per la particolare pianta ad elle.
Si accede alla dimora attraversando una suggestiva corte interna, impreziosita da un giardino che circonda la struttura al cui centro sorge un antico pozzo romano. Lesterno e gli interni sono finemente ristrutturati nei minimi dettagli, attraverso unimportante opera di restauro che ne valorizza ogni singolo spazio, realizzando così un connubio di stili antichi ed eleganti con unattenzione ai comfort moderni.
Il Castelletto si sviluppa su quattro livelli: il piano seminterrato, due bagni, la cantina con locale di servizio, il piano terra dove si trovano quattro sale, fra cui il salone principale, con i suoi intonaci, pavimenti e decorazioni originali, abbellito da un camino originale del 1300, che si impone nellambiente, creando unatmosfera suggestiva e accogliente, troviamo anche la cucina, che si distingue per il mantenimento di spazi e tratti antichi, ma totalmente rinnovata per garantire le esigenze della quotidianità dei nostri giorni, perfetta sia per un utilizzo privato sia per la preparazione di eventi.
La dimora si sviluppa su un totale di 1.100 mq e salendo ai piani superiori si trovano camere da letto, 2 delle quali dotate di bagno privato. Al primo piano, oltre alle camere, si trovano due saloni, adibiti e perfetti per eventi mondani e ricevimenti. Il secondo piano ospita un ampio sottotetto di 350 mq con travi a vista originali, che può offrire ulteriori possibilità di sviluppo e restyling degli spazi, grazie anche alle numerose finestre con affaccio esterno, trasformandolo anche in un nuovo appartamento.
Questa dimora è impreziosita dai soffitti con travi in legno a vista e pareti che lasciano intravedere le antiche murature, che donano appunto tratti di personalità e caratterizzazione unici.
Unilluminazione calda e discreta, un giardino curato, impreziosito da un antico pozzo romano, il profilo del castello stesso che domina il fiume che gli scorre vicino, rendono questo immobile di lusso un luogo unico e magico ideale da vivere, ma anche perfetto per eventi esclusivi o la possibilità di adibirlo a struttura ricettiva.
Main data
| Reference | CBI135-1881-1836 |
| Ad date | 13/05/2025 |
| Contract | Sale |
| Typology | Castle |
| Surface | 1100 m2 |
| Locals | more than 5 (4 bedrooms, 11 other), 3 bathrooms, kitchen habitable |
| Plan | Entire building, 4 totals |
| Occupied | Free |
| Garage | Absent |
| Number of parking spaces | 4 |
| Furniture | Absent |
Costs
| Price | 1.300.000 € |
| Price per m2 | 1.182 €/m2 |
Energy efficiency
| Status | Excellent |
| Heating | Centralized |
| Energy rating | G |
| Energy Performance Index (IPE) | 234 kWh/m2 year |
Floor plans
Address and map
Via XXV Aprile, Castelletto Cervo
Ad without map,
try asking the advertiser for the position
try asking the advertiser for the position
Mortgage calculation
Selling price:
Advance
20,00
Mortgage
80,00
Rate: -+
Payment: 3.718 per month
The results are an indicative estimate based on the data entered and do not constitute a financial offer.
Advertiser

Coldwell Banker Immobiliare Morabito
Corso Sempione, 44, Milano
Show Mobile
Bellegoni Anastasia
Show Phone
Call
CONTACT

