Ufficio Via Salvatore Orlando 3, Livorno
€ 82.000Ufficio - operativo a Nord, Livorno
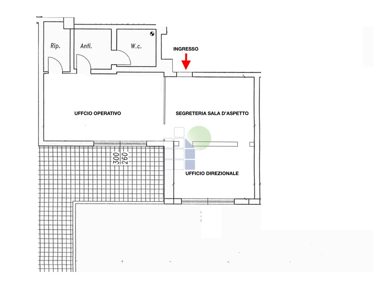
ELEGANTE UFFICIO ZONA PORTO VENDESI ad Euro 82.000 trattabili. In contesto polifunzionale, proponiamo la vendita di Ufficio di circa 75 mq in perfette condizioni, posto al secondo piano con ascensore. L'ufficio è composto da un ampia stanza di ricezione, un ufficio direzionale ed un ufficio operativo, bagno con antibagno e terrazza esterna. Completa la proprietà due posti auto di proprietà. L'attuale utilizzatore e proprietario dell'immobile resterà in affitto nei locali ad euro 600 mese generando una rendita annua del 10 % circa. Ottima Occasione di investimento Riferimento annuncio n. 3311
Dati principali
| Riferimento | 3311 |
| Data annuncio | 18/04/2024 |
| Contratto | Vendita |
| Tipologia | Ufficio |
| Superficie | 75 m2 |
| Locali | 2 (2 altro), 1 bagno |
| Piano | 1 totali |
| Numero di terrazzi | 1 |
Costi
| Prezzo | 82.000 € |
| Prezzo al m2 | 1.093 €/m2 |
Efficienza energetica
| Anno costruzione | 1995 |
| Classe energetica | G |
Planimetrie
Indirizzo e mappa
Via Salvatore Orlando 3, Livorno
Calcolo mutuo
Prezzo di vendita:
Anticipo
20,00
Mutuo
80,00
Tasso: -+
Rata: 235 al mese
I risultati sono una stima indicativa basata sui dati inseriti e non costituiscono un’offerta finanziaria.
Inserzionista

INTERMEDIA IMMOBILIARE
Via Niccolò Machiavelli, 47, Livorno
Mostra Telefono
Mostra Cellulare
Chiama
CONTATTA

