Casa semi indipendente Contrada COLLEPALMA 6/7, Loreto Aprutino
€ 182.000
Complesso con abitazione, frantoio e terreno Opportunità imprenditoriale a Loreto Aprutino (Contrada Collepalma)Nel suggestivo scenario collinare di Loreto Aprutino, in posizione panoramica e riservata a soli 3 km dal centro storico, proponiamo in vendita una proprietà dal forte potenziale imprenditoriale composta da:
Porzione abitativa su tre livelli
Strutture produttive
Ampia area esterna di circa 3.000 mq
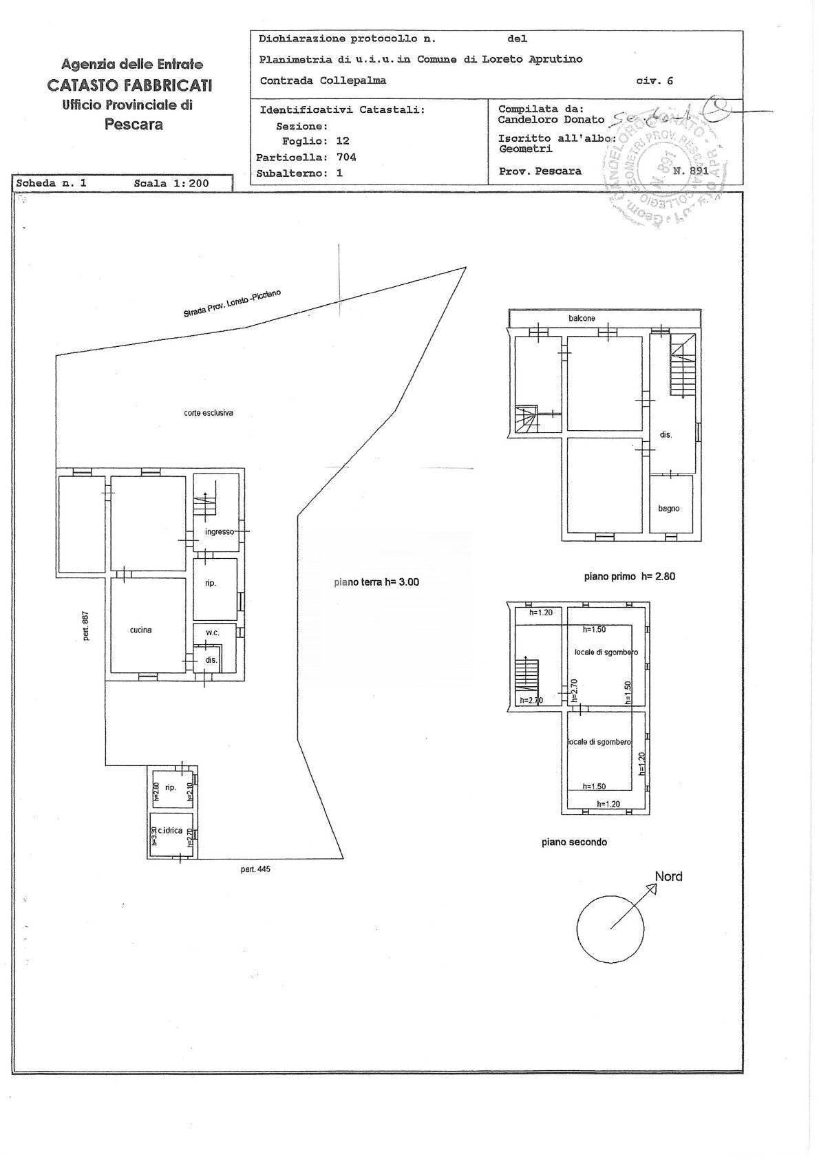
Parte ResidenzialeLabitazione si sviluppa su tre livelli:
Piano terra e primo piano ad uso residenziale
Secondo piano adibito a locale di sgombero
La possibilità di vivere direttamente sul luogo dellattività rappresenta un importante valore aggiunto per chi desidera coniugare vita privata e progetto professionale.
Strutture ProduttiveStoricamente utilizzata come azienda olearia, la proprietà dispone di spazi già strutturati per attività artigianali, agricole o di trasformazione:
Stanzino di circa 10 mq
Frantoio di circa 135 mq
Magazzino di circa 80 mq
Gli ambienti si prestano anche a riconversioni funzionali (laboratori, deposito, attività ricettiva rurale, showroom agroalimentare, ecc.).
Area EsternaIl complesso insiste su un terreno di circa 3.000 mq, ideale per:
Organizzazione operativa dellattività
Eventuali ampliamenti
Parcheggi o aree di manovra
Progetti agricoli o turistico-ricettivi
PosizioneImmersa nella campagna abruzzese ma facilmente collegata al centro di Loreto Aprutino, la proprietà gode di un contesto autentico, tranquillo e strategico, in un territorio rinomato per la produzione olearia e vitivinicola.
Opportunità di InvestimentoAttualmente limmobile è locato, configurandosi anche come investimento a reddito.
Perché scegliere questa proprietà?' Spazi già predisposti per attività produttive
' Presenza di abitazione annessa
' Ampia area esterna
' Contesto naturale e riservato
' Potenziale imprenditoriale concreto
Una soluzione ideale per chi desidera realizzare un progetto in Abruzzo che unisca impresa, territorio e qualità della vita.
Porzione abitativa su tre livelli
Strutture produttive
Ampia area esterna di circa 3.000 mq
Parte ResidenzialeLabitazione si sviluppa su tre livelli:
Piano terra e primo piano ad uso residenziale
Secondo piano adibito a locale di sgombero
La possibilità di vivere direttamente sul luogo dellattività rappresenta un importante valore aggiunto per chi desidera coniugare vita privata e progetto professionale.
Strutture ProduttiveStoricamente utilizzata come azienda olearia, la proprietà dispone di spazi già strutturati per attività artigianali, agricole o di trasformazione:
Stanzino di circa 10 mq
Frantoio di circa 135 mq
Magazzino di circa 80 mq
Gli ambienti si prestano anche a riconversioni funzionali (laboratori, deposito, attività ricettiva rurale, showroom agroalimentare, ecc.).
Area EsternaIl complesso insiste su un terreno di circa 3.000 mq, ideale per:
Organizzazione operativa dellattività
Eventuali ampliamenti
Parcheggi o aree di manovra
Progetti agricoli o turistico-ricettivi
PosizioneImmersa nella campagna abruzzese ma facilmente collegata al centro di Loreto Aprutino, la proprietà gode di un contesto autentico, tranquillo e strategico, in un territorio rinomato per la produzione olearia e vitivinicola.
Opportunità di InvestimentoAttualmente limmobile è locato, configurandosi anche come investimento a reddito.
Perché scegliere questa proprietà?' Spazi già predisposti per attività produttive
' Presenza di abitazione annessa
' Ampia area esterna
' Contesto naturale e riservato
' Potenziale imprenditoriale concreto
Una soluzione ideale per chi desidera realizzare un progetto in Abruzzo che unisca impresa, territorio e qualità della vita.
Dati principali
| Riferimento | 112 |
| Data annuncio | 06/08/2025 |
| Contratto | Vendita |
| Tipologia | Casa semi indipendente |
| Superficie | 250 m2 |
| Locali | 5 (3 camere da letto, 2 altro), 2 bagni, cucina abitabile |
| Piano | Su più livelli, 3 totali |
| Occupato | Libero |
| Box auto | Assente |
| Numero posti auto | 4 |
Caratteristiche
Costi
| Prezzo | 182.000 € |
| Prezzo al m2 | 728 €/m2 |
Efficienza energetica
| Riscaldamento | Autonomo |
| Tipo Alimentazione Riscaldamento | Altro |
| Classe energetica | G |
| Indice di prestazione energetica (IPE) | 240 kWh/m2 anno |
Planimetrie
Indirizzo e mappa
Contrada COLLEPALMA
6/7, Loreto Aprutino
Annuncio senza mappa,
prova a chiedere la posizione all'inserzionista
prova a chiedere la posizione all'inserzionista
Calcolo mutuo
Prezzo di vendita:
Anticipo
20,00
Mutuo
80,00
Tasso: -+
Rata: 521 al mese
I risultati sono una stima indicativa basata sui dati inseriti e non costituiscono un’offerta finanziaria.
Inserzionista

Enzo D'Alessandro Immobiliare
Via Firenze n. 137, Pescara
Mostra Telefono
Mostra Cellulare
Chiama
CONTATTA

